Running on
Cargo
Miguel dos Santos Architect
Projects
About
Collaborations
Publications
Contact
Filter: Residential
view all
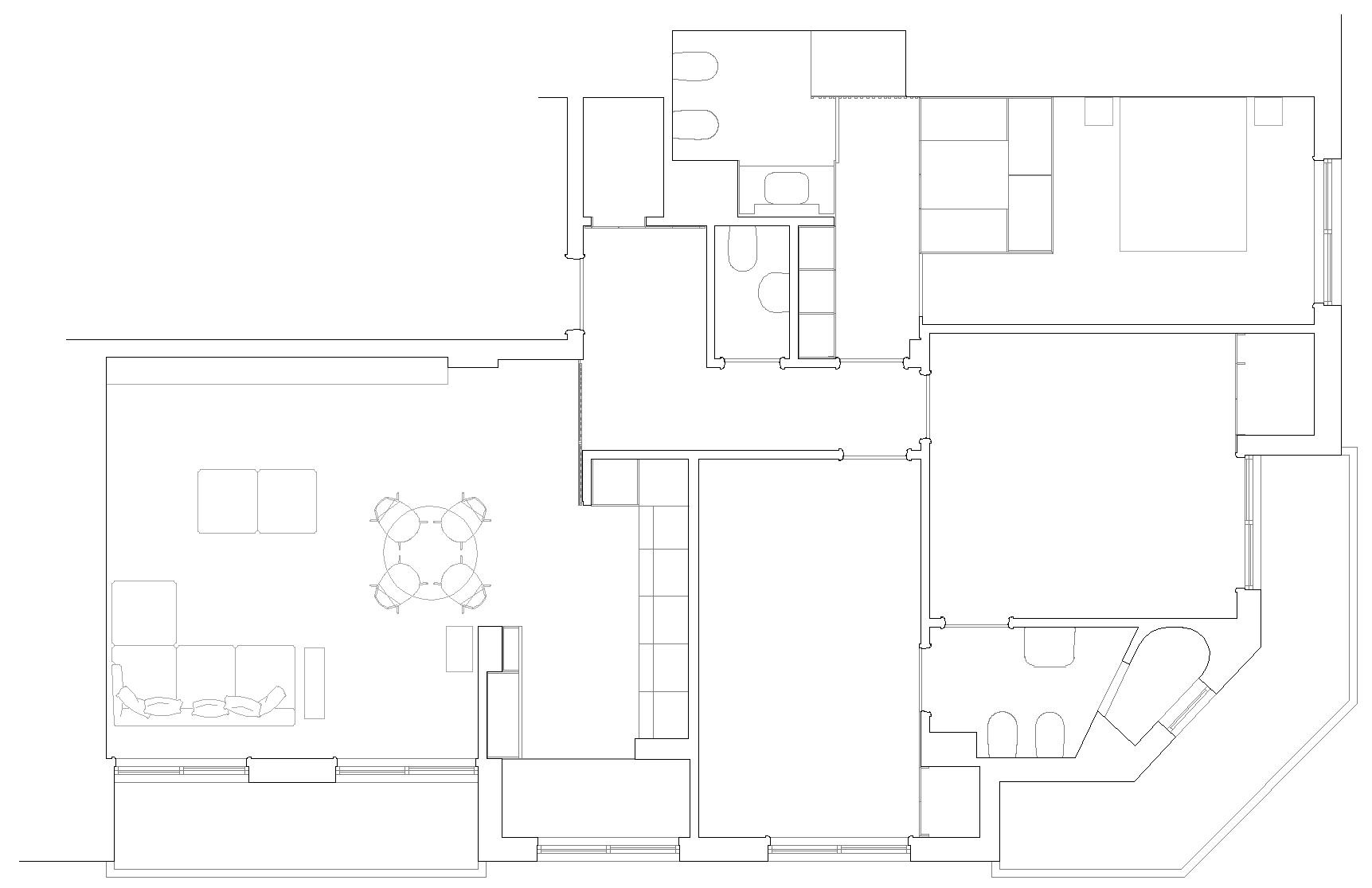
15 Novembro
15 NOVEMBRO
Status: Built
Program: Residential
Location: Rua 15 de Novembro, Porto, Portugal
Year: 2013
Index
House Leça da Palmeira
JNM Apartment
Venade
15 Novembro
Paraíso
Montevideu
Freixieiro de Soutelo
Cidade da Praia
Vila Real
Irivo
View all